Cận cảnh căn nhà gạch ở làng chài Mũi Né được vinh danh

(PLO)-Trên mạng đầy những hình ảnh những căn biệt phủ, biệt thự xa hoa với kiến trúc cổ điển, bán cổ điển, tân cổ điển, tây có, tàu có nhưng đối với những kiến trúc sư sừng sỏ thế giới đó chỉ là những con số 0 tròn trĩnh. Thế nhưng có một căn nhà nhỏ ở làng chài Mũi Né xây bằng gạch lại được tạp chí Kiến trúc nổi tiếng thế giới World Architecture News vinh danh.

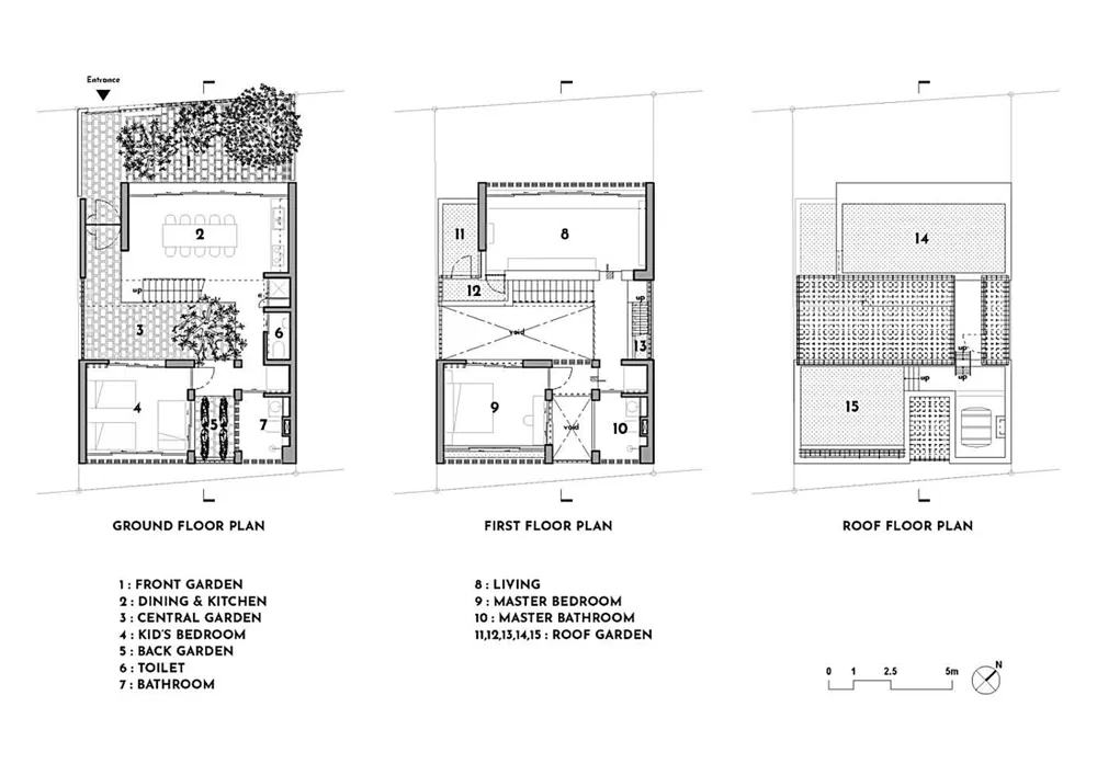
Căn nhà gạch nhỏ này do kiến trúc sư người Nhật Kuniko Onishi và Victor Llavata người Tây Ban Nha cùng thiết kế. Chỉ với diện tích 141m2, hai tầng nhưng lại được sắp xếp có tới 8 mảnh sân vườn phân bổ khắp các khu vực như tầng trệt, tầng lầu và mái.

Chính cách xây gạch như tấm lưới không chỉ giúp thoáng khí mà còn giúp ngôi nhà có thể đón gió biển cách đó chỉ vài trăm mét. Người ta gọi đây là căn nhà Á-Âu và các công trình kiến trúc để được World Architecture News tôn vinh thì ở Việt Nam chỉ đếm trên đầu ngón tay.

Photo: Kuniko Onishi

Đừng bỏ lỡ

Video đang xem nhiều

Đọc thêm