Ngôi nhà có mặt tiền gạch lộ thiên tại TP Bảo Lộc

(PLO)- Thiết kế ngôi nhà có mặt tiền là bức tường gạch lộ thiên, có khoảng hở nhỏ cho phép không khí và ánh sáng lưu thông trong và ngoài nhà.

ngoi-nha-co-mat-tien-1.jpg
Khang House tọa lạc tại TP Bảo Lộc, tỉnh Lâm Đồng, là tổ ấm của một gia đình ba thế hệ. Ngôi nhà được thiết kế theo phong cách kiến ​​trúc hiện đại, kết hợp không gian sống với thiên nhiên.
Kiến trúc sư the bloom architects đã thiết kế <i>ngôi nhà có mặt tiền</i> độc đáo với việc sử dụng những bức tường gạch lộ thiên có nhiều khoảng hở nhỏ.
Kiến trúc sư The Bloom Architects đã thiết kế ngôi nhà có mặt tiền độc đáo với việc sử dụng những bức tường gạch lộ thiên có nhiều khoảng hở nhỏ.
ngoi-nha-1.jpg
Cửa sổ tròn lớn ở tầng trên là điểm nhấn chính của mặt tiền, không chỉ đóng vai trò là chi tiết thẩm mỹ mà còn là sự kết nối giữa ngôi nhà và môi trường xung quanh.
ngoi-nha-4.jpg
Bức tường này không chỉ toát lên vẻ đẹp mộc mạc và tự nhiên mà còn cho phép không khí và ánh sáng lưu thông, tạo cảm giác rộng mở cho không gian bên trong.
ngoi-nha-5.jpg
Cây xanh được bố trí hợp lý xung quanh không gian, kết hợp với ánh sáng tự nhiên từ cửa kính, tạo nên môi trường sống trong lành và thoáng mát.
ngoi-nha-7.jpg
Bước vào bên trong, phòng khách là một không gian mở, kết nối trực tiếp với khu vườn xanh tươi bên ngoài qua những cánh cửa kính lớn.
ngoi-nha-8.jpg
Phòng khách được thiết kế theo phong cách tối giản nhưng tinh tế với gỗ là vật liệu chủ đạo, mang đến sự ấm áp và gần gũi.
ngoi-nha-12.jpg
Sự kết hợp giữa ánh sáng tự nhiên, cây xanh và vật liệu tự nhiên tạo nên một không gian sống mở, kết nối con người với thiên nhiên.
ngoi-nha-10.jpg
Cây xanh được bố trí hợp lý xung quanh không gian. Cả phía trước và phía sau đều tràn ngập cây xanh, có lối đi lát đá mềm mại.
ngoi-nha-6.jpg
Khu vực bếp và phòng ăn cũng được thiết kế theo phong cách mở, với những cánh cửa kính lớn cho phép ánh sáng tự nhiên tràn ngập không gian.
ngoi-nha-9.jpg
Bên ngoài là một khu vườn nhỏ, nơi gia đình có thể thưởng thức bữa ăn ngoài trời hoặc hít thở không khí trong lành.
ngoi-nha-11.jpg
Nhà bếp hiện đại có một đảo bếp lớn và đồ nội thất tiện dụng được sắp xếp gọn gàng. Tông màu trung tính và màu xanh dịu nhẹ của tủ bếp tạo nên bầu không khí hài hòa
ngoi-nha-13.jpg
Cầu thang dẫn đến các tầng tràn ngập ánh sáng nhờ ô vuông bằng kính lấy sáng.
ngoi-nha-14.jpg
ngoi-nha-15.jpg
Từ phòng khách đến bếp và phòng ngủ đều được thiết kế để tối ưu hóa ánh sáng tự nhiên và kết nối với cây xanh.
ngoi-nha-16.jpg
Cửa sổ lớn cho phép ánh sáng tự nhiên tràn ngập căn phòng, giữ cho không gian luôn sáng sủa và thoáng mát.
ngoi-nha-18.jpg
Phòng ngủ của bố mẹ được thiết kế theo phong cách tối giản, chú trọng đến sự thoải mái và yên tĩnh. Điểm nhấn của căn phòng là cửa sổ tròn lớn, mở ra tầm nhìn rộng ra quang cảnh bên ngoài.
ngoi-nha-19.jpg
Phòng ngủ của bé gái và bé trai đầy năng lượng và sự sáng tạo.
ngoi-nha-23.jpg
Đặc biệt vào ban đêm, hệ thống đèn được thiết kế hắt ánh sáng qua những khoảng hở của gạch, tạo ra hiệu ứng ánh sáng lấp lánh và nghệ thuật, làm nổi bật nét đặc trưng của kiến ​​trúc.
ngoi-nha-20.jpg
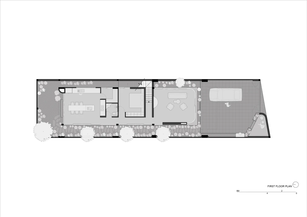
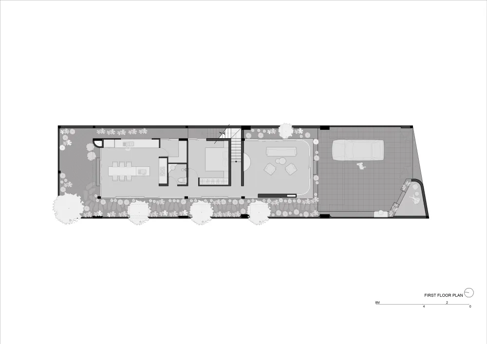
Mặt bằng tầng một.
ngoi-nha-21.jpg
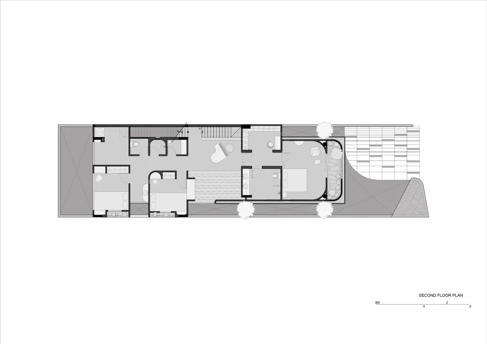
Mặt bằng tầng hai,
ngoi-nha-22.jpg
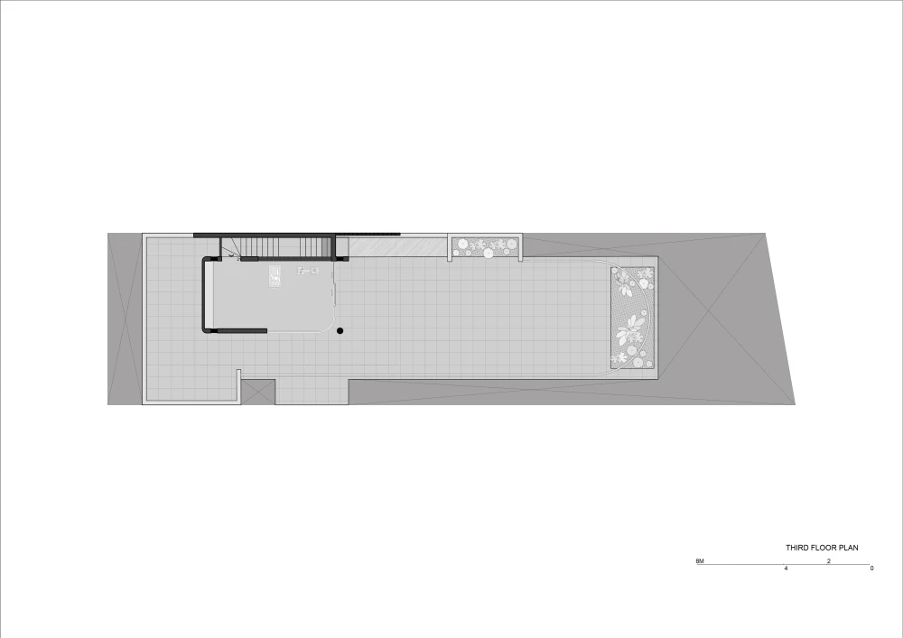
Mặt bằng tầng ba.

Đừng bỏ lỡ

Video đang xem nhiều

Đọc thêm